LA DIFFUSIONE DEL GOTICO A VENEZIA

Il termine “gotico” fu coniato dagli intellettuali del Rinascimento che proponevano un ritorno alla classicità e consideravano questo stile “barbarico” perché proveniente dai paesi del Nord. In realtà il gotico nacque in Francia alla metà del XII secolo e si diffuse molto rapidamente in tutta Europa unificando in un linguaggio internazionale le espressioni architettoniche.

Le chiese

Il Gotico rappresenta un altissimo esempio di creatività e arditezza costruttiva le cui caratteristiche principali sono la leggerezza, la verticalità, la trasparenza, la luminosità. Complessi calcoli permisero di elaborare un sistema di spinte e controspinte, fondato sull’impiego di archi a sesto acuto e di volte ogivali, che consentirono sia di accentuare le altezze, conferendo così all’edificio slancio, eleganza e dinamismo, sia di alleggerire le masse murarie con l’apertura di immense vetrate colorate. Esternamente cuspidi e pinnacoli accentuano il verticalismo delle strutture che, innalzandosi vertiginosamente verso il cielo, invitano il credente nel simbolico viaggio verso il divino.

   

“L’arditezza di certe soluzioni strutturali, ancora lì da sette secoli, creerebbe oggi grosse difficoltà di calcolo ai nostri ingegneri informatizzati, mentre le vetrate dipinte e leggibili contro luce anticipano alcune recentissime proposte di una Architettura dove le facciate divengono un veicolo di informazioni, messaggi e immagini legate all’elettricità, all’elettronica e all’informatica”. (Zambusi 2006, pag. 24)

La grandiosa facciata in cotto, forata dal grande rosone e tripartita da lesene, si conclude a coronamento mistilineo ornato da edicolette. Il campanile, concluso nel 1396, è tra i più alti della città. La pianta è a croce latina, i robusti piloni, collegati da "catene" lignee, sorreggono gli arconi ogivali e separano le tre navate chiuse da volte a crociera. Al centro dell'immensa navata sorge l'intatto coro ligneo, costruito in forme gotico-fiorite nel 1468, e diviso in tre ordini con 124 posti. La luce scende, diffusa dalle splendide vetrate, a dar rilievo all'interno.

Le due chiese coeve rappresentano i più prestigiosi esempi del gotico veneziano.

Chiesa di Santa Maria Gloriosa dei Frari
XIV - XV sec. ultimata nel 1433
Venezia, San Polo.

Veduta dell’abside.

Chiesa dei Santi Giovanni e Paolo
XIV – XV sec. ultimata nel 1430
Venezia, Castello.

      

Interno.

          

Vetrata.

Definita il Pantheon della Serenissima per i numerosi sepolcri dogali posti al suo interno, la chiesa è lunga oltre cento metri e alta quasi quarantadue. Il verticalismo della grandiosa facciata, che riprende la struttura interna a tre navate, è sottolineato dalle edicole marmoree con statue e pinnacoli. L'assenza del campanile conferisce al volume della monumentale chiesa un peso proprio. L'imponente navata centrale, con volte a crociera, è sorretta da gigantesche colonne unite da tiranti lignei, che la separano dalle due navate laterali. L'accentuata verticalità dell'interno crea un effetto di "immenso", cui si aggiunge l'eccezionale trasparenza dell'abside maggiore, perforata in tutta la sua altezza da una sequenza di finestre e rosoni. La grande vetrata, dal vivace cromatismo, è uno dei pochi esemplari superstiti prodotti dalla scuola muranese tra il gotico e il primo rinascimento.

In alcuni casi, alla volta gotica ogivale, si preferisce la copertura lignea a carena di nave eseguita dalle maestranze dell’Arsenale.

Chiesa di Santo Stefano
XIV secolo
Venezia, San Marco.

                         

Chiesa di San Giacomo dell’Orio
XII-XIII secolo
Venezia, Santa Croce.


L’architettura civile

Il linguaggio gotico tardò a penetrare nel tessuto cittadino sia per il forte legame con la cultura orientale sia per la precisa volontà politica e culturale di rivendicare la propria unicità e indipendenza.

Ca’ Loredan
XII secolo
Venezia, Cannaregio.

 

Ca’ da Mosto
XIII secolo
Venezia, Cannaregio.

 

Abbiamo quindi uno spostamento cronologico rispetto al resto d’Italia, ma una volta rielaborato secondo le esigenze locali, il gotico” fiorito” perdurò nel territorio della Serenissima sino agli ultimi decenni del 1400, con esempi anche più tardi. E, mentre a Firenze il Brunelleschi completava la cupola di Santa Maria del Fiore simbolo del primo Rinascimento, nell'area marciana il gotico diventava la lingua dell’autocelebrazione aristocratica, e quel parlare “gentile” delle forme veniva adottato nei cantieri di Palazzo Ducale e della basilica.

Fu dunque mescolandovi motivi orientali che l’arco gotico apparve a Venezia, legandosi poi in bifore, trifore, polifore. Le facciate dei palazzi si trasformano in un grandioso merletto di pietra e le masse murarie così alleggerite tendono a divenire un sottile confine di chiaroscuro tra la terra e l’acqua dove l’immagine si frantuma in mille riflessi. Questo gioco coloristico viene amplificato dall’impiego di vari materiali costruttivi: al laterizio si affianca la pietra d’Istria e poi il marmo.


Palazzo Soranzo
XIV – XV secolo
Polifora
Venezia, San Polo.

                               

Ca’ d’Oro
1421 – 1443
Venezia, Cannaregio.

Il palazzo, commissionato dal ricco mercante Marino Contarini, presenta una singolare struttura asimmetrica e, per la particolarità dei materiali usati, fu immediatamente nominato “d’oro”. Marmi dalla ricca cromia naturale sono accostati a lastre dai toni leggermente diversi e all’epoca ogni profilo e ogni elemento in rilievo erano dipinti con il rosso, l’azzurro, la biacca, il nero, l’oro, con effetti che ora stentiamo ad immaginare. Nella facciata i vuoti prevalgono sui pieni e la decorazione a traforo ne esalta la trasparenza e la leggerezza.

Ca’ d’Oro
Corte.

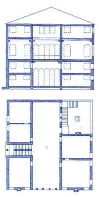
Tipologia costruttiva

Il palazzo gotico mantiene la struttura della casa-fondaco, residenza e azienda del mercante, e presenta due ingressi: quello dall’acqua per le merci, l’altro da terra che immette in una corte con scalone esterno e pozzo centrale per la distribuzione dell’acqua piovana. All’ampio atrio, su cui si affacciano i magazzini, corrisponde il piano nobile “portego”, ambiente di rappresentanza, sul quale si aprono le stanze dell’abitazione. Il sottotetto è ad uso di dipendenti e servitori e le due ali al fianco dell’androne, se divise a metà in altezza, creano un ammezzato, sede degli uffici del mercante.